
在安裝硬齒面減速機之前,需要了解以下幾個方面的知識。1.安裝位置的要求安裝位置要求減速機能夠穩定地工作,切勿選用斜坡、凹槽或者需要加強支撐的地面,對于長時間工作的減速機,還需要考慮通風情況。2.減速機的定位為了使減速機的輸出軸與動力軸對稱,需要精確地定位減速機。一般采用不銹鋼螺栓將減速機與底座緊固在一起。3.安全的維護空間為了保證減速機在維護時的安全,需要足夠的維護空間。如果減速機位于不能移動的機

非標減速機在使用中,無法正常運轉的原因很多,可能是電機驅動電源問題,也可能是減速機本身故障,或是環境溫度過高或是電機負載過重。要保證減速機能夠正常運轉,需要及時檢查減速機的狀態,以便及時解決問題,確保非標準化減速機的正常運轉。

擺線針輪減速機輸出軸與輸入軸轉向相同是其較為重要的特性之一,這一設計能夠保證精度的一致性和機器的運轉平穩,提高了機器的工作效率和使用壽命。隨著科技的進步和工業制造的發展,擺線針輪減速機特性將不斷完善,廣泛應用于各個行業中,促進經濟的發展和人類文明的進步。

通過對擺線針輪減速機系統測試及工作原理的介紹,我們可以了解到擺線針輪減速機具有運轉平穩、傳動效率高等優點,其應用廣泛,包括醫療設備、制造業、自動化及軌道交通領域。在使用擺線針輪減速機時,需要對其進行測試,以確保其具備精確的尺寸精度和間隙值,出色的耐用性及壽命,以及穩定的工作性能。

ZQ減速器是一種具有優異特點、應用范圍廣泛的工業傳動設備,其結構緊湊、安裝方便、運行平穩、噪音低等特點贏得了廣泛應用。在使用過程中,我們需要定期進行檢查和維護,才能確保其長期穩定地工作。相信隨著工業技術的不斷發展和升級,ZQ減速器也將不斷進步和改進,更好地服務于各行各業的工業生產。

ZQ減速機是漸開線圓柱齒輪減速器,ZQ齒輪減速機適用于建材、起重、運輸、冶金、化工和輕工等行業。高速軸轉速不超過1500r/min,齒輪圓周速度不大于12m/s,效率不低于0.94,工作環境為-40℃—+40℃,可正反轉運行。

ZQSH減速器是戰斗機、航空航天器等高級設備的重要配件,也是工業、石油、天然氣等領域的關鍵裝備。ZQSH減速器適用于高速低扭矩轉換到低速高扭矩的傳動任務,具有體積小、重量輕、轉矩承載能力大等特點。ZQSH減速器采用航空航天級別的材料和技術制造,具有高強度、磨損耐用、低噪音、高精度等特點。優異性能的背后精密設計 ZQSH減速器將傳動系統優化設計,對傳動部件的尺寸、材料、工藝等進行精密計算,確保傳動

ZQSH減速機是二級傳動雙圓弧圓柱齒輪減速器適用于建材、起重、運輸、冶金、化工和輕工等行業。高速軸轉速不超過1500r/min,齒輪圓周速度不大于12m/s,效率不低于0.94,工作環境為-40℃—+40℃,可正反轉運行。

ZD型減速器通過匹配具體工況進行設計制造,受到很多行業的青睞。它具有高效、高性能、耐用等多個優秀的特性,這些特點充分保障了產品在使用過程中的穩定性和維護方便性,并不斷受到廣大消費者的認可。盡管“匹配”是它的優勢,但ZD型減速器也有比較大的應用范圍,包括汽車、冶金、造紙、輪胎和公路橋梁等行業。它的出現,有力的推動了這些行業的發展。

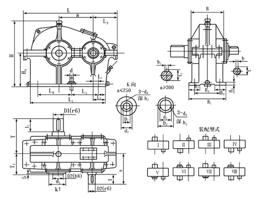
ZD減速機是單級漸開線圓柱齒輪減速器,它們主要用于礦山、冶金、水泥、建筑、化工、特工等各種機械設備的機械傳動,高速軸轉速不超過1500r/min,齒輪圓周速度不大于18m/s,工作環境為-40℃~+40℃,可正反轉運行。

ZDH減速器擁有多年的研發經驗和先進的技術設備,是各行業客戶值得信賴的產品。該款減速器系列采用了先進的設計和工藝,具有廣泛的市場應用,可應用于冶金、礦山、機械、建筑等各個領域。

ZDH減速機是單級圓弧圓柱齒輪減速器,它們主要用于礦山、冶金、水泥、建筑、化工、特工等各種機械設備的機械傳動,高速軸轉速不超過1500r/min,齒輪圓周速度不大于18m/s,工作環境為-40℃~+40℃,可正反轉運行。

ZDSH減速器是一種常見的工業傳動設備,以其高效穩定、壽命長、結構簡單、運行可靠等優點,廣泛應用于冶金、電力、熱電、水泥、造紙、化工、船舶等各個領域。

ZDSH減速機是單級雙圓弧圓柱齒輪減速器,它們主要用于礦山、冶金、水泥、建筑、化工、特工等各種機械設備的機械傳動,高速軸轉速不超過1500r/min,齒輪圓周速度不大于18m/s,工作環境為-40℃~+40℃,可正反轉運行。

為了更好地滿足現代工業對傳動系統的要求,ZL變速器應運而生。ZL變速器作為目前市場上應用較廣泛的一種變速器,具有結構簡單、運轉平穩、操作方便等優點.

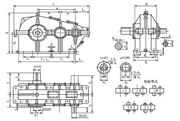
ZL減速機是兩級漸開線圓柱齒輪減速器,它們主要用于礦山、冶金、水泥、建筑、化工、輕工等各種機械設備的減速傳動。高速軸轉速不超過1500r/min,齒輪圓周速度不大于18m/s,工作環境溫度為-40℃~+40℃,可正反轉運行。

ZLH減速機是一款具有優良性能、高精度、穩定性和可靠性的減速機,被廣泛應用于機械傳動、紡織、化工、配料、工程機械等行業。它不僅結構緊湊、易于安裝、操作方便、噪聲小,而且運行平穩、效率高、壽命長,成為減速機行業的佼佼者。

ZLH減速機是兩級圓弧圓柱齒輪減速器,它們主要用于礦山、冶金、水泥、建筑、化工、輕工等各種機械設備的減速傳動。高速軸轉速不超過1500r/min,齒輪圓周速度不大于18m/s,工作環境溫度為-40℃~+40℃,可正反轉運行。

ZLSH減速機憑借其高效可靠的工作性能、細節設計精良、靈活多樣化的選配方案、廣泛的應用領域和優秀的技術和服務,一直是各行各業優選的驅動裝置之一。它的出現改變了傳統減速機市場格局,為用戶帶來了更為高效、可靠和節能的驅動裝置。

ZLSH減速機是兩級雙圓弧圓柱齒輪減速器,它們主要用于礦山、冶金、水泥、建筑、化工、輕工等各種機械設備的減速傳動。高速軸轉速不超過1500r/min,齒輪圓周速度不大于18m/s,工作環境溫度為-40℃~+40℃,可正反轉運行。
掃一掃咨詢微信客服