JZQ減速機應用范圍及結構概況
1、應用范圍及優點:
JZQ減速機廣泛應用于各種起重、運輸、礦山機械及其它各種機械中作減速之用。其聯動方式,可用聯軸器直接聯動,也可用三角皮帶撓性聯動。本機通用性和互換性強,維修簡單,效率系數為0.94,具有起動阻力小,運動靈活等優點。
2、結構概況及主要零部件:
JZQ減速機結構型式為兩級三軸圓柱斜齒水平分割全封式。潤滑油盛于減速機之內部,在主動軸和中間軸上設有擋油板,各軸支點均用滾動軸承,其軸向間隙,可用內部調整環調整之,本機上部有一檢查蓋,下部有油標指針和排廢油用的油塞。
齒輪和軸均用優質炭素鋼制造,并經調質處理,齒輪多用高級鑄造鋼制造,并經正火處理,箱體材料為灰鑄鐵HT-200并經時效處理,齒輪按8級精度制造的滾切斜齒,傾斜角為8°6′34″,兩配偶齒輪齒數和為99牙。

JZQ減速機齒輪具有下列法向模數MH和齒寬B表一
減速機型號JZQ | 250 | 350 | 400 | 500 | 650 | 750 | 850 | 1000 |
Ⅰ級 | MHI | 2 | 3 | 3 | 4 | 5 | 6 | 7 | 8 |
BI | 40 | 60 | 60 | 80 | 100 | 120 | 140 | |
Ⅱ級 | MH2 | 3 | 4 | 5 | 6 | 8 | 9 | 10 | 12 |
B2 | 60 | 80 | 100 | 120 | 160 | 180 | 200 | |
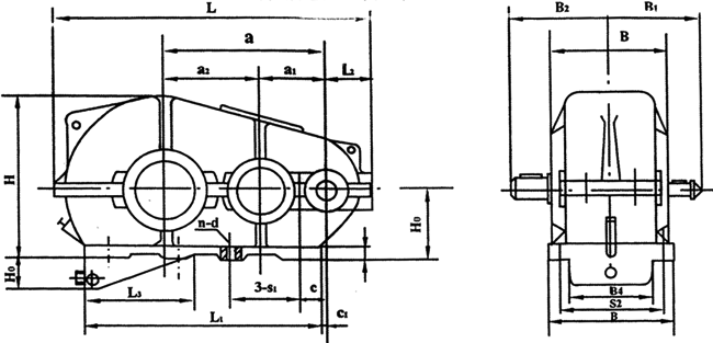
JZQ減速機外形及安裝尺寸
型號 | 中心距 | 中心高 H0 | 較大外形尺寸 | 軸端尺寸 | L1 | L2 | L3 | B4 | H1 | g | 安裝尺寸 | 較大 質量 kg | a | a1 | a2 | L | B | H | 高速軸 B1 | 低速軸 B2 | C | C1 | 孔距 | 孔徑 d | 孔數 n | S1 | S2 | JZQ250 | 250 | 100 | 150 | 160-00.5 | 540 | 230 | 313 | 200 | 218 | 345 | 101 | - | - | - | 20 | 60 | 28 | 235 | 190 | 17 | 4 | 100 | JZQ350 | 350 | 150 | 200 | 200-00.5 | 730 | 290 | 440 | 260 | 248 | 470 | 132 | - | - | - | 25 | 100 | 40 | 310 | 250 | 17 | 4 | 200 | JZQ400 | 400 | 150 | 250 | 250-00.5 | 826 | 310 | 490 | 270 | 303 | 490 | 133 | - | - | - | 25 | 110 | 80 | 370 | 370 | 17 | 4 | 250 | JZQ500 | 500 | 200 | 300 | 300-00.5 | 986 | 350 | 587 | 330 | 323 | 645 | 148 | - | - | - | 25 | 130 | 80 | 240 | 310 | 17 | 6 | 390 | JZQ650 | 650 | 250 | 400 | 320-01.5 | 1278 | 470 | 695 | 430 | 428 | 830 | 183 | 495 | 324 | 100 | 30 | 160 | 85 | 215 | 410 | 25 | 8 | 880 | JZQ750 | 750 | 300 | 450 | 320-01.5 | 1448 | 510 | 740 | 450 | 445 | 1020 | 206 | 620 | 364 | 135 | 35 | 155 | 55 | 275 | 450 | 25 | 8 | 1100 | JZQ850 | 850 | 350 | 500 | 400-01.5 | 1632 | 580 | 875 | 510 | 523 | 1100 | 236 | 610 | 418 | 105 | 38 | 155 | 75 | 300 | 520 | 32 | 8 | 1500 | JZQ1000 | 1000 | 400 | 600 | 400-01.5 | 1896 | 660 | 965 | 550 | 603 | 1350 | 257 | 870 | 478 | 200 | 40 | 200 | 100 | 350 | 590 | 32 | 8 | 2230 |
|
|
JZQ減速機功率表功率表 減速機高速軸功率(千瓦) | 每分 鐘轉 速 | 工作 延注 時間 率 | 傳動比代號 | Ⅰ | Ⅱ | Ⅲ | Ⅳ | Ⅴ | Ⅵ | Ⅶ | Ⅷ | Ⅸ | 傳動比i | 48.57 | 40.17 | 31.50 | 23.34 | 20.49 | 15.75 | 12.64 | 10.35 | 8.23 | JZQ250型減速機 | 750 | 25% | 1.3 | 1.5 | 1.9 | 2.7 | 3.1 | 3.5 | 4.0 | 4.8 | 5.4 | 40% | 1.1 | 1.3 | 1.6 | 2.3 | 2.6 | 3.0 | 3.4 | 4.0 | 4.6 | 100% | 0.4 | 0.5 | 0.7 | 0.9 | 1.0 | 1.4 | 1.8 | 2.2 | 2.8 | 1000 | 25% | 1.6 | 2.1 | 2.3 | 3.1 | 3.5 | 4.0 | 4.8 | 5.4 | 5.9 | 40% | 1.4 | 1.8 | 2.0 | 2.6 | 3.0 | 3.4 | 4.4 | 4.6 | 5.0 | 100% | 0.55 | 0.65 | 0.9 | 1.2 | 1.4 | 2.0 | 2.4 | 3.0 | 3.75 | 1500 | 25% | 2.1 | 2.5 | 2.7 | 3.7 | 4.4 | 4.8 | 5.5 | 6.1 | 6.7 | 40% | 1.8 | 2.1 | 2.3 | 3.1 | 3.7 | 4.1 | 4.7 | 5.2 | 5.7 | 100% | 0.8 | 0.95 | 1.35 | 1.8 | 2.0 | 3.0 | 3.8 | 4.5 | 5.0 | JZQ350型減速機 | 750 | 25% | 3.0 | 3.6 | 5.0 | 6.5 | 7.1 | 9.7 | 14.0 | 13.2 | 15.2 | 40% | 2.6 | 3.1 | 4.3 | 5.5 | 6.1 | 8.3 | 11.9 | 11.2 | 12.9 | 100% | 0.95 | 1.1 | 1.5 | 2.0 | 2.3 | 3.4 | 5.7 | 5.6 | 6.5 | 1000 | 25% | 4.0 | 4.8 | 6.5 | 8.3 | 9.2 | 12 | 18.2 | 15.7 | 18.6 | 40% | 3.5 | 4.0 | 5.5 | 7.1 | 7.8 | 10.3 | 15.5 | 13.3 | 5.8 | 100% | 1.25 | 1.5 | 2.0 | 2.7 | 3.1 | 4.6 | 8.5 | 7.0 | 8.7 | 1500 | 25% | 5.8 | 6.8 | 9.3 | 11.3 | 12.9 | 15.7 | 18.2 | 21 | 23.5 | 40% | 4.9 | 5.8 | 7.9 | 9.6 | 11.0 | 13.4 | 15.5 | 17.8 | 20.2 | 100% | 1.9 | 2.3 | 3.0 | 4.1 | 4.6 | 6.9 | 8.5 | 9.5 | 13.1 | JZQ400型減速機 | 750 | 25% | 4.5 | 5.7 | 6.6 | 9.1 | 10.4 | 11.5 | 13.6 | 15.6 | 18.3 | 40% | 3.8 | 4.9 | 5.6 | 7.7 | 8.9 | 9.8 | 11.6 | 13.3 | 15.5 | 100% | 1.9 | 2.2 | 3.1 | 4.2 | 4.8 | 6.7 | 8.4 | 10.2 | 12.8 | 1000 | 25% | 4.0 | 7.0 | 7.9 | 10.6 | 11.7 | 13.4 | 16.2 | 18.3 | 19.7 | 40% | 4.3 | 5.9 | 6.7 | 9.0 | 9.5 | 11.4 | 13.8 | 15.6 | 17.3 | 100% | 2.5 | 3.0 | 4.1 | 5.6 | 6.4 | 8.5 | 11.1 | 13.5 | 16.0 | 1500 | 25% | 7.0 | 8.6 | 9.4 | 13.0 | 14.7 | 16.4 | 18.6 | 20.5 | 22.5 | 40% | 5.9 | 7.3 | 8.0 | 11.0 | 12.5 | 13.9 | 16.1 | 18.7 | 22.0 | 100% | 2.7 | 4.3 | 6.2 | 8.5 | 9.7 | 12.7 | 15.8 | 17.4 | 19.2 | JZQ500型減速機 | 750 | 25% | 10.1 | 12.0 | 15.1 | 21.0 | 24.0 | 27.0 | 32.0 | 37.0 | 42.5 | 40% | 8.6 | 10.2 | 12.8 | 18.1 | 20.4 | 23.0 | 27.0 | 31.5 | 36.0 | 100% | 3.3 | 3.8 | 5.4 | 7.3 | 8.3 | 11.5 | 14.4 | 17.6 | 22.1 | 1000 | 25% | 12.7 | 15.7 | 18.1 | 24.5 | 27.5 | 31.0 | 37.5 | 42.0 | 46.0 | 40% | 10.8 | 13.4 | 15.4 | 20.5 | 23.0 | 26.0 | 32.0 | 35.5 | 39.0 | 100% | 4.3 | 5.2 | 7.2 | 9.7 | 11.0 | 15.4 | 19.2 | 23.5 | 26.8 | 1500 | 25% | 16.3 | 20.2 | 22.5 | 32.0 | 34.5 | 38.0 | 43.5 | 47.5 | 52.5 | 40% | 13.9 | 17.0 | 19.2 | 27.0 | 29.0 | 32.0 | 37.0 | 40.5 | 44.5 | 100% | 6.4 | 7.8 | 10.8 | 14.6 | 16.6 | 23.0 | 26.0 | 32.5 | 40.5 | JZQ650型減速機 | 750 | 25% | 20.5 | 26 | 29 | 41 | 47.5 | 53 | 62 | 73 | 83 | 40% | 17.4 | 22 | 24.5 | 35 | 40.5 | 44.5 | 52.5 | 62 | 70 | 100% | 7.76 | 9.2 | 12.8 | 17.4 | 19.5 | 27.5 | 35 | 42 | 43 | 1000 | 25% | 25 | 31.5 | 35.5 | 48 | 56 | 60 | 73 | 83 | 60 | 40% | 21 | 26.5 | 30 | 40.5 | 47 | 51 | 62.5 | 70 | 76 | 100% | 10.1 | 12.3 | 17 | 23 | 26.5 | 37 | 46 | 50.5 | 64 | 1500 | 25% | 32 | 38.5 | 42 | 60 | 70 | 74 | 84 | 93 | 101.5 | 40% | 27 | 33 | 36 | 51 | 60 | 63 | 71 | 79 | 96.5 | 100% | 15.2 | 18.4 | 25.5 | 34.5 | 39.5 | 50 | 63 | 70 | 86 | JZQ750型減速機 | 750 | 25% | 34.5 | 41 | 52 | 73 | 83 | 93 | 110 | 128 | 146 | 40% | 29.5 | 35 | 44.5 | 62 | 70 | 79 | 94 | 109 | 142 | 100% | 11 | 13.1 | 18.2 | 24.5 | 28 | 39 | 48.5 | 60 | 68 | 1000 | 25% | 44 | 54 | 63 | 85 | 94 | 105 | 130 | 146 | 158 | 40% | 37 | 46 | 53 | 72 | 80 | 90 | 110 | 124 | 134 | 100% | 14.5 | 17.5 | 23.8 | 35 | 37.5 | 52 | 59 | 72 | 90 | 1500 | 25% | 56 | 69 | 75 | 104 | 118 | 130 | 149 | 156 | | 40% | 48 | 59 | 63 | 89 | 110 | 111 | 127 | 133 | | 100% | 12.5 | 26.5 | 36.5 | 49 | 56 | 71 | 88 | 108 | | JZQ850型減速機 | 750 | 25% | 47.5 | 57 | 77 | 101 | 114 | 151 | 174 | 205 | 230 | 40% | 40.5 | 48.5 | 65 | 86 | 97 | 128 | 148 | 174 | 195 | 100% | 15.2 | 17.9 | 25 | 33.5 | 38.5 | 54 | 67 | 75 | 94 | 1000 | 25% | 63 | 57 | 100 | 126 | 141 | 168 | 205 | 234 | 252 | 40% | 54 | 64 | 85 | 110 | 120 | 143 | 174 | 199 | 214 | 100% | 21.3 | 24 | 33 | 45 | 51 | 72 | 82 | 99 | 125 | 1500 | 25% | 90 | 106 | 119 | 162 | 180 | 210 | 238 | | | 40% | 76 | 90 | 101 | 138 | 153 | 179 | 202 | | | 100% | 29.6 | 35.5 | 50 | 68 | 70 | 98 | 121 | | | JZQ1000型減速機 | 750 | 25% | 82 | 98 | 124 | 171 | 196 | 220 | 260 | 305 | 342 | 40% | 69 | 83 | 105 | 145 | 166 | 188 | 220 | 260 | 290 | 100% | 26 | 31.5 | 43.5 | 58.5 | 66 | 92 | 105 | 129 | 160 | 1000 | 25% | 104 | 127 | 148 | 205 | 220 | 250 | 306 | 346 | 367 | 40% | 88 | 108 | 126 | 173 | 188 | 215 | 260 | 294 | 312 | 100% | 34.5 | 41.8 | 58 | 78 | 89 | 113 | 140 | 110 | 216 | 1500 | 25% | 132 | 163 | 1.6 | 246 | 281 | 302 | | | | 40% | 112 | 138 | 148 | 209 | 238 | 258 | | | | 100% | 51.5 | 62 | 87 | 106 | 121 | 175 | | | |
|
| | | |
|
JZQ減速機主要規格
本系列減速機按大小、速比、裝配形式分如下幾種:
1、按主動軸、被動軸中心距分八種型號:JZQ250、JZQ350、JZQ400、JZQ500、JZQ650 、JZQ750、JZQ850、JZQ1000。
2、按速比大小、每種型號又分以下九種速比。
JZQ減速機軸端尺寸
型號 | 接 軸 尺 寸 |
低 速 軸 | 高 速 軸 |
d1 | b1 | c1 | L2 | d2 | b2 | c2 | L2 |
JZQ250 | ф55 | 18 | 47 | 83 | ф30 | 8 | 9.5 | 58 |
JZQ350 | ф55 | 18 | 47 | 83 | ф40 | 12 | 13.5 | 82 |
JZQ400 | ф80 | 28 | 67 | 123 | ф40 | 12 | 13.5 | 82 |
JZQ500 | ф80 | 28 | 67 | 123 | ф50 | 16 | 8 | 82 |
JZQ650 | ф110 | 36 | 100 | 163 | ф60 | 18 | 22 | 105 |
JZQ750 | ф110 | 36 | 100 | 163 | ф60 | 18 | 22 | 105 |
JZQ850 | ф130 | 36 | 113 | 198 | ф90 | 24 | 35 | 130 |
JZQ1000 | ф150 | 40 | 137 | 238 | ф90 | 24 | 35 | 130
|